12X12 Bathroom Layout : Bathroom Remodeling Design Diy Information Pictures Photos Ceramic Niches Shower Shelves Kitchen Manassas Shower Tile Ideas Va - 12×12 bathroom wall tiles are the most frequently used tiles that are the core material for many decoration styles like the classical style, modern style, or retro style.

12X12 Bathroom Layout : Bathroom Remodeling Design Diy Information Pictures Photos Ceramic Niches Shower Shelves Kitchen Manassas Shower Tile Ideas Va - 12×12 bathroom wall tiles are the most frequently used tiles that are the core material for many decoration styles like the classical style, modern style, or retro style.. A full bathroom layout will contain four parts which are a sink, toilet, tub and shower. With that in mind, consider what you want in the room. Working on house plans and cannot come up with a layout for a 12x12 master bath. Incorporating leaded or deco glass in window design. Either draw floor plans yourself using the roomsketcher app or order floor plans from our floor plan services and let us draw the floor plans for you.

After all, with the shower at about 2.5' x 5' and the cabinet being 2' x 4', it's only about 30 more sf. 6 inch bathroom floor plan. It is a great way to see if everything will practically fit, but it has added advantages. This bathroom squeezes the shower, toilet and sink into a small area while still. Lots to talk about here.

Ante Shed Plans Free 12x12 Room How Many Square Info
Ante Shed Plans Free 12x12 Room How Many Square Info from losangelesrealestatestaging.com
A full bathroom layout will contain four parts which are a sink, toilet, tub and shower. This bathroom layout uses a 5ft by 8ft plan that makes good use of every inch of available space. Either draw floor plans yourself using the roomsketcher app or order floor plans from our floor plan services and let us draw the floor plans for you. Common codes for bathroom design. A 3/4 bathroom layout will contain a sink, toilet and tub. 6 inch bathroom floor plan. Bathroom floor plans bathroom … This bathroom design is somewhat unique.

A full bathroom layout will contain four parts which are a sink, toilet, tub and shower.

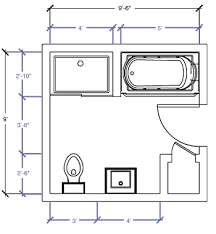
12×12 bathroom wall tiles are the most frequently used tiles that are the core material for many decoration styles like the classical style, modern style, or retro style. The main amenities are located near the center of the room, creating a circular traffic flow to the layout. Where will the big elements like your bath, shower, vanity (and maybe toilet) go? Well, since the bathroom footprint was small, 5' x 10', and they were going to take out the tub and build in a nice shower stall in it's place, i suggested that they go ahead and redo the floor too. One of the main challenges with small bathroom floor plans is to make the space as functional as possible. Of the four walls, two will be exterior and two interior. Working on house plans and cannot come up with a layout for a 12x12 master bath. This bathroom design is somewhat unique. The use of coordinating but different stone for walls and niche. We really admire the bathroom laundry room's material choice. Differences in color and material provide a great choice of tiles for your bathroom design. Overall bathroom sizes will vary based on the actual dimensions of bathroom fixtures. (design by rate my space contributor mamma4x) it's all in the details.

Start big and work your way down. It is a great way to see if everything will practically fit, but it has added advantages. Making a detailed floor plan to scale is well worth the effort. It will streamline your thoughts and help you visualize design and decor solutions. (design by rate my space contributor mamma4x) it's all in the details.

Luxury Kitchen Designs Kitchen Backsplash Design Bathroom Layout Plans Bathroom Layout Bathroom Floor Plans
Luxury Kitchen Designs Kitchen Backsplash Design Bathroom Layout Plans Bathroom Layout Bathroom Floor Plans from i.pinimg.com
Overall bathroom sizes will vary based on the actual dimensions of bathroom fixtures. Working on house plans and cannot come up with a layout for a 12x12 master bath. Of the four walls, two will be exterior and two interior. In the interest of providing some more rules of thumb, here are some common codes and typical dimensions to consider: The main amenities are located near the center of the room, creating a circular traffic flow to the layout. There are several layout ideas you can incorporate for your 8×8 bathroom, including the vanity layout. A bathtub simply takes up too much space in this size. Lovely awesome ideas bathroom floor plans 8 x 12 7 x master bath layout for.

Another common size for a smaller bathroom is a 7' x 7' foot design.

The main amenities are located near the center of the room, creating a circular traffic flow to the layout. Master bathroom design 12x12 size/free 12x12 master bath floor plan. Lovely awesome ideas bathroom floor plans 8 x 12 7 x master bath layout for. Of the four walls, two will be exterior and two interior. In the interest of providing some more rules of thumb, here are some common codes and typical dimensions to consider: There are several layout ideas you can incorporate for your 8×8 bathroom, including the vanity layout. Bathroom layout with roomsketcher, it's easy to create a professional bathroom layout. By choosing this kind of shower design, the bathroom looks much wider. When planning your bathroom layout, start with how you should use and move through the room, based on its size, shape and placements of doors and windows. A full bathroom usually requires a minimum of 36 to 40 square feet. There are several other layout options to help to accommodate a large toilet or a large shower. Where will the big elements like your bath, shower, vanity (and maybe toilet) go? 6 inch bathroom floor plan.

Lots to talk about here. There are several other layout options to help to accommodate a large toilet or a large shower. 6 in x 6 ft. Enjoyable design ideas 11 8 x 12 bathroom designs home design ideas from bathroom designs 12x12, source:pinterest.com bathroom designs 12×12 february 13, 2018 november 26, 2018 by 2019homedesigncom 266 views By choosing this kind of shower design, the bathroom looks much wider.

1
1 from
The use of coordinating but different stone for walls and niche. For a soaking tub, you'll want at least a footprint of 3. It is a great way to see if everything will practically fit, but it has added advantages. A full bathroom layout will contain four parts which are a sink, toilet, tub and shower. The average old house or period house contains at least two bathrooms, the fundamental fixtures being a toilet, sink and tub, installed in a room not smaller than 5 ft. Making a detailed floor plan to scale is well worth the effort. Enjoyable design ideas 11 8 x 12 bathroom designs home design ideas from bathroom designs 12x12, source:pinterest.com bathroom designs 12×12 february 13, 2018 november 26, 2018 by 2019homedesigncom 266 views Where will the big elements like your bath, shower, vanity (and maybe toilet) go?

You could search for images you like for info functions.

For a soaking tub, you'll want at least a footprint of 3. A 3/4 bathroom layout will contain a sink, toilet and tub. This bathroom squeezes the shower, toilet and sink into a small area while still. Image courtesy of jorge castillo design. Differences in color and material provide a great choice of tiles for your bathroom design. This bathroom layout uses a 5ft by 8ft plan that makes good use of every inch of available space. It will streamline your thoughts and help you visualize design and decor solutions. Additionally, its bulky look will create a cramped feeling. Enjoyable design ideas 11 8 x 12 bathroom designs home design ideas from bathroom designs 12x12, source:pinterest.com bathroom designs 12×12 february 13, 2018 november 26, 2018 by 2019homedesigncom 266 views When planning your bathroom layout, start with how you should use and move through the room, based on its size, shape and placements of doors and windows. Of the four walls, two will be exterior and two interior. Working on house plans and cannot come up with a layout for a 12x12 master bath. We will certainly inform you concerning the awesome ideas bathroom floor plans 8 x 12 7 x master bath layout for photo gallery we carry this site.

Iklan Atas Artikel

Iklan Tengah Artikel 1

Iklan Tengah Artikel 2

Iklan Bawah Artikel